













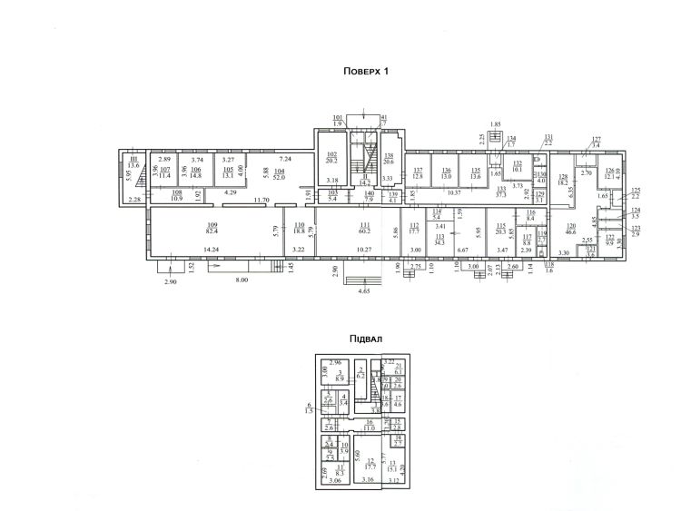
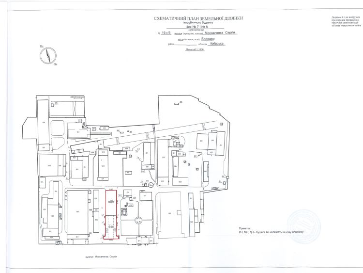
Опис об'єкту
Продаж окремо розташованої офісної будівлі в Київській області.
Адреса: м. Бровари, вул. Сергія Москаленка, 16-Г
Площа - 1 878,1 кв.м.
Опис об'єкта:
Будівля складається з 3-х поверхів:
1 поверх - торговельні та офісні приміщення.
2 та 3 поверх - офіси.
Частково проведено ремонт приміщень та санвузлів, встановлені нові газові котли.
Висота стель – 3,5 м.
Є стоянка.
Земельна ділянка: 0,5398 Га.
Кадастровий номер: 3210600000:01:047:0021
Правовий статус: оренда.
Інженерне забезпечення:
- Електрика – 112 кВт (є можливість збільшення потужності),
- Водопостачання та каналізація - центральні.
- Опалення – газові котли.
Розташування: будівля стоїть на червоній лінії вул. Сергія Москаленка, навпроти ТЦ "ФОРУМ" та супермаркету "АТБ".
Відстань від Києва -14 км, від Броварської окружної дороги – 600 м.
Біля об'єкта зупинка громадського транспорту, будівельний та продуктовий супермаркет, відділення банку, кафе тощо.
Вартість об'єкта: 1 244 019 у.о. (662 у.о./кв.м).
*Оплата у гривні по курсу на день угоди.
Об'єкт на карті















Опис об'єкту
Продаж виробничо-складської будівлі в Київській області.
Адреса: м. Бровари, вул. Сергія Москаленка, 16-Б
(колишня вулиця Красовського)
Площа – 6060,0 кв.м.
Земельна ділянка - 1,4099 Га.
Кадастровий номер: 3210600000:00:047:0021
Правовий статус – оренда.
Опис об'єкта:
1-2 поверхова будівля, яка складається з:
- АПК з блоком складів - 5 690,4 кв.м.
- Склад тимчасового зберігання - 271,5 кв.м.
- Інші допоміжні приміщення.
Добудова АПК з блоком складів відбулася в 2003 році.
Висота стелі АПК - 6,3 м.
Є рампа.
Технічний опис конструктивних елементів будівлі:
- Фундамент та цоколь – бетон
- Стіни - цегла, бетон
- Перегородки – цегла
- Міжповерхові перекриття – з/б бетон
- Підлога – бетон
- Дах – рубероїд/профлист
Інженерне забезпечення:
- Електропостачання – 10 кВ (10 000 вольт)
- Трансформатор – 630 кВА
- Водопостачання та каналізація – централізовані
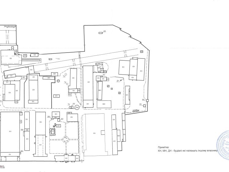
Розташування: на території виробничо-складського комплексу.
Відстань від Києва - 14 км, від Броварської окружної дороги – 600 м.
Вартість об'єкта: 2 420 615 у.о. (399 у.о./кв.м.)
Оплата у гривні по курсу на день угоди.
Об'єкт на карті
















Опис об'єкту
Продажа отдельно стоящего офисного здания в Киевской области.
Адрес: г. Бровары, ул. Сергея Москаленко, 16-Г
Площадь – 1 878,5 кв.м.
Описание объекта:
Здание состоит из 3-х этажей:
1 этаж – торговые и офисные помещения.
2 и 3 этаж – офисы.
Частично произведен ремонт помещений и санузлов, установлены новые газовые котлы.
Высота потолков – 3,5 м.
Есть стоянка.
Земельный участок: 0,5398 Га.
Кадастровый номер: 3210600000:01:047:0021
Правовой статус: аренда.
Инженерное обеспечение:
- Электричество – 112 кВт (есть возможность увеличения мощности),
- Водоснабжение и канализация – центральные.
- Отопление – газовые котлы.
Расположение: здание находится на красной линии по ул. Сергея Москаленка, напротив ТЦ "ФОРУМ" и супермаркета "АТБ".
Расстояние от Киева –14 км, от Броварской окружной дороги – 600 м.
Около объекта остановка общественного транспорта, строительный и продуктовый супермаркет, отделение банка, кафе и т.д.
Стоимость объекта: 1 051 960 у.е. (560 у.е./кв.м).
*Оплата в гривне по курсу на день сделки.
Об'єкт на карті













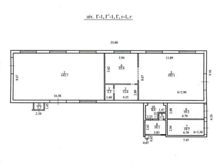
Опис об'єкту
Продаж виробничо-складської будівлі в Київській області.
Адреса: м. Бровари, вул. Сергія Москаленка, 16 Г (Красовського)
Площа об'єкта – 2 675,6 кв.м.
Земельна ділянка - 0,4987 га
Кадастровий номер: 3210600000:01:047:0023
Правовий статус – оренда.
Опис об'єкта:
Будівля складається з 1-го поверху.
Висота стелі – 6 м
Кран-балка – 3 тони
Ворота - 7 шт
Стіни – цегла
Перекриття та підлога – бетон
Інженерне забезпечення:
- Електрика - 300 кВт (є можливість збільшення потужності)
- Водопостачання та каналізація – центральні.
Розташування: Будівля розташована на території заводу “ТОРГМАШ”.
Земельна ділянка виходить на вул. С. Москаленка (навпроти ТЦ “Форум”).
Навпроти - зупинка громадського транспорту. Відстань від Києва -14 км, від Броварської окружної дороги – 600 м.
Вартість об'єкта: 757 447 у.о. (283 у.о./кв.м).
*Оплата в грн, за курсом на день угоди
Об'єкт на карті














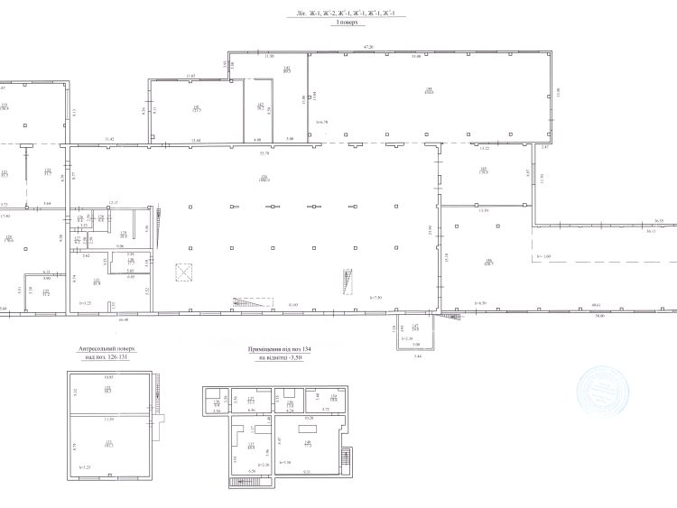
Опис об'єкту
Продаж виробничо-складської будівлі в Київській області.
Адреса: м. Бровари, вул. Сергія Москаленка, 16-Г
Опис об'єкта:
Будівля складається з 1-3-поверхів.
Висота стелі від 3,5 до 6 м.
Ворота - 9 шт.
Площа об'єкта – 6067,2 кв.м.
Складається з виробничих приміщень – 4867,6 кв.м та АБК – 1199,6 кв.м.
Земельна ділянка – 0.8039 га.
Кадастровий номер: 3210600000:01:047:0025
Правовий статус – оренда.
Інженерне забезпечення:
- Електрика - 360 кВт (є можливість збільшення потужності).
- Водопостачання та каналізація - центральні
Розташування: Будівля розташована на території заводу “ТОРГМАШ”. Земельна ділянка виходить на вул. С. Москаленка (навпроти ТЦ “Форум”).
Навпроти - зупинка громадського транспорту. Відстань від Києва -14 км, від Броварської окружної дороги – 600 м.
Вартість об'єкта - 1 562 967 у.о. (258 у.о./кв.м)
Оплата в грн., за курсом на день угоди.
Об'єкт на карті










Опис об'єкту
Продаж виробничо-складської будівлі в Київській області.
Адреса: м. Бровари, вул. Сергія Москаленка, 16-Г (колишня вулиця Красовського)
Площа об'єкта – 1711 кв.м.
Земельна ділянка - 0,4454 га
Кадастровий номер: 3210600000:01:047:0040
Правовий статус: оренда
Опис об'єкта:
Будівля складається з 1-го поверху
Висота стелі від 3,4 до 5,4 метрів
Ворота – 6 шт
Стіни – цегла
Перекриття та підлога – бетон
Інженерне забезпечення:
- Електрика 100 кВт (є можливість збільшення потужності)
- Водопостачання і каналізація – центральне.
Розташування: будівля розташована на території заводу “ТОРГМАШ”.
Навпроти - зупинка громадського транспорту.
Відстань від Києва -14 км, від Броварської окружної дороги – 600 м.
Вартість об'єкта: 410 640 у.о. (240 у.о./кв.м)
Оплата в гривні за курсом на день угоди
Об'єкт на карті










Опис об'єкту
Продажа производственного здания в Киевской области.
Адрес: г. Бровары, ул. Сергея Москаленко, 16-Г.
Площадь объекта: 4 043 кв.м
Земельный участок: 7 167 кв.м.
Кадастровый номер: 3210600000:01:047:0042
Правовой статус: аренда.
Описание объекта:
Здание состоит из 1-2 этажей.
Высота потолков – 3,4м.
Инженерное обеспечение:
- Электричество: 200 кВт
- Водоснабжение и канализация: центральные
Расположение: Здание расположено на территории завода "Торгмаш". Земельный участок выходит на ул. С. Москаленко (напротив ТЦ "Форум").
Напротив – остановка общественного транспорта. Расстояние от Киева –14 км, от Броварской окружной дороги – 600 м.
Стоимость комплекса: 606 450 у.е. (150 у.е./кв.м)
*Оплата в гривне по курсу на день сделки.
Об'єкт на карті
















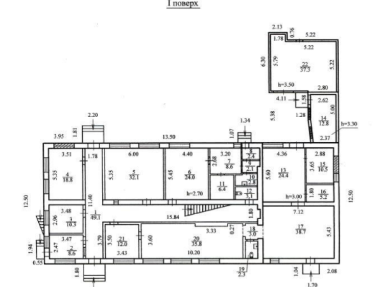
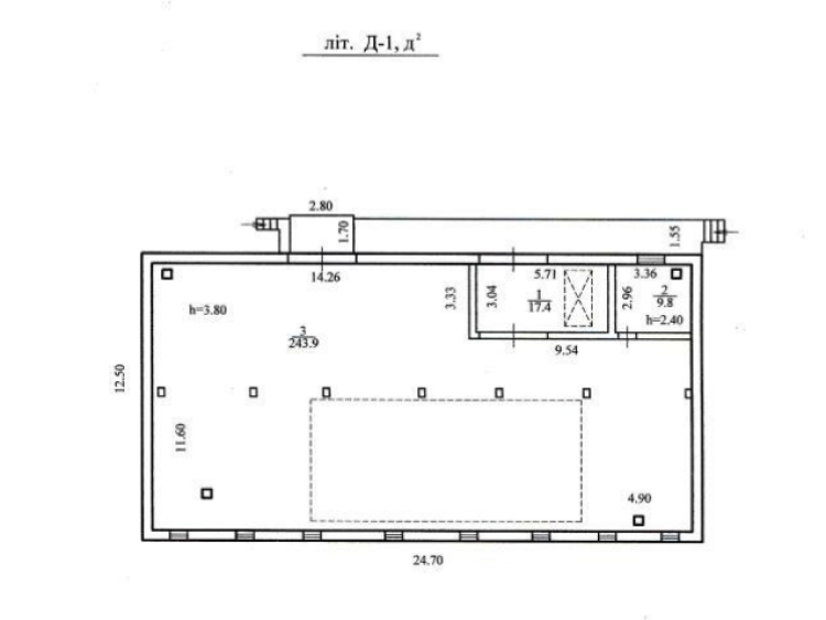
Опис об'єкту
Продажа производственно-складского комплекса кв.м в Киевской области.
Адрес: г. Бровары, ул. Сергея Москаленка, 16
Общая площадь здания – 2 954,7 кв.м.
Земельный участок - 0,965 Га
Кадастровый номер: 3210600000:01:047:0002
Правовой статус: аренда
Описание объекта:
Комплекс состоит из зданий:
- Столярный цех с боксами – 1354,3 кв.м.
- Административный корпус – 661,2 кв.м
- Пилорама – 535,4 кв.м
- Склад с подвалом – 356,6 кв.м.
- Состав – 47,2 кв.м.
Инженерное обеспечение:
- Электричество – 60 кВт (есть возможность увеличения мощности)
- Водоснабжение и канализация – центральные
Расположение: комплекс расположен на красной линии по ул. Сергея Москаленка.
Рядом остановка общественного транспорта, отделение почты.
Активный трафик, ЖК, ТЦ Атлант, магазин Фора.
Расстояние от Киева –14 км, от Броварской окружной дороги – 500 м.
Стоимость комплекса: 738 675 у.е. (250 у.е./кв.м)
*Оплата в гривне по курсу на день сделки.
Об'єкт на карті













Опис об'єкту
Продажа производственного здания в Киевской области.
Адрес: г. Бровары, ул. Сергея Москаленка, 16-Г
Площадь объекта – 2 675,6 кв.м.
Земельный участок - 0,4987 га
Кадастровый номер: 3210600000:01:047:0023
Правовой статус – аренда.
Описание объекта:
Здание состоит из 1-го этажа.
Высота потолков – 6 м
Кран-балка – 3 тонны
Ворота – 7 шт
Стены – кирпич
Перекрытие и пол – бетон
Инженерное обеспечение:
- Электричество – 300 кВт (есть возможность увеличения мощности)
- Водоснабжение и канализация – центральные
Расположение: Здание расположено на территории завода "Торгмаш". Земельный участок выходит на ул. С. Москаленко (напротив ТЦ "Форум").
Напротив – остановка общественного транспорта. Расстояние от Киева –14 км, от Броварской окружной дороги – 600 м.
Стоимость объекта: 749 168 у.е. (280 у.е./кв.м).
*Оплата в грн., по курсу на день сделки
Об'єкт на карті










Опис об'єкту
Продажа производственного здания в Киевской области.
Адрес: г. Бровары, ул. Сергея Москаленко, 16-Г (бывшая улица Красовского)
Площадь объекта – 1711 кв.м.
Земельный участок - 0,4454 га
Кадастровый номер: 3210600000:01:047:0040
Правовой статус: аренда
Описание объекта:
Здание состоит из 1-го этажа
Высота потолков от 3,4 до 5,4 метров.
Ворота – 6 шт
Стены – кирпич
Перекрытие и пол – бетон
Инженерное обеспечение:
- Электричество 100 кВт (есть возможность увеличения мощности)
- Водоснабжение и канализация – центральное.
Расположение: здание расположено на территории завода "ТОРГМАШ".
Напротив – остановка общественного транспорта.
Расстояние от Киева –14 км, от Броварской окружной дороги – 600 м.
Стоимость объекта: 410 640 у.е. (240 у.е./кв.м)
Оплата в гривне по курсу на день сделки