











Опис об'єкту
Продажа производственно-складского здания в Киевской области.
Адрес: г. Бровары, ул. Сергея Москаленка, 16-Г.
Площадь объекта – 2956,9 кв.м
Земельный участок – 0,7250 Га
Кадастровый номер: 3210600000:01:047:0011
Правовой статус: аренда.
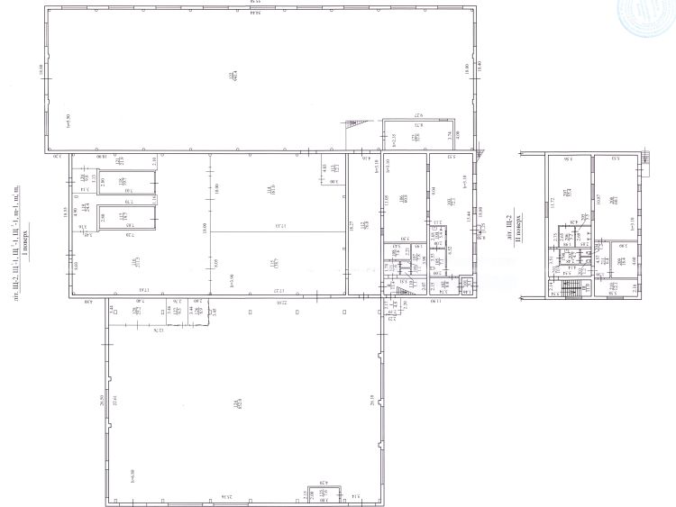
Описание объекта: 2-х этажное здание:
1 этаж – 2787,1 кв.м;
2 этаж – 195,1 кв.м.
Стены – кирпич, перекрытие и пол – бетон.
Высота потолков – 6 м
Есть кран-балка – г/п 2 тонны,
Ворота – 6 шт.
Инженерное обеспечение:
- Электричество – 150 кВт (есть возможность увеличения мощности);
- Водоснабжение и канализация – центральные.
Расположение: здание расположено на территории завода "Торгмаш".
Расстояние от Киева –14 км, от Броварской окружной дороги – 600 м.
У завода остановка общественного транспорта. Развита инфраструктура, рядом ТЦ "Форум", банки, магазины.
Стоимость объекта: 532 242 у.е. (180 у.е./кв.м).
*Оплата в грн., по курсу на день сделки
Об'єкт на карті














Опис об'єкту
Продажа производственного здания в Киевской области.
Адрес: г. Бровары, ул. Сергея Москаленка, 16-Г
Описание объекта:
Здание состоит из 1-3 этажей.
Высота потолков от 3,5 до 6 м.
Ворота – 9 шт.
Площадь объекта – 6067,2 кв.м.
Состоит из производственных помещений – 4867,6 кв.м и АБК – 1199,6 кв.м.
Земельный участок – 0.8039 га.
Кадастровый номер: 3210600000:01:047:0025
Правовой статус – аренда.
Инженерное обеспечение:
- Электричество – 360 кВт (есть возможность увеличения мощности).
- Водоснабжение и канализация – центральные
Расположение: Здание расположено на территории завода "Торгмаш". Земельный участок выходит на ул. С. Москаленко (напротив ТЦ "Форум").
Напротив – остановка общественного транспорта. Расстояние от Киева –14 км, от Броварской окружной дороги – 600 м.
Стоимость объекта – 1 395 456 у.е. (230 у.е./кв.м)
Оплата в грн., по курсу на день сделки.